Immagini immobile
Per informazioni contattare Sara Bordin 3667071294 – s.bordin@zoneimmobiliare.it.
Asolo, frazione: ZONE IMMOBILIARE propone in vendita una raffinata schiera di testa, disposta su tre livelli e con giardino su tre lati (nord-ovest-sud)
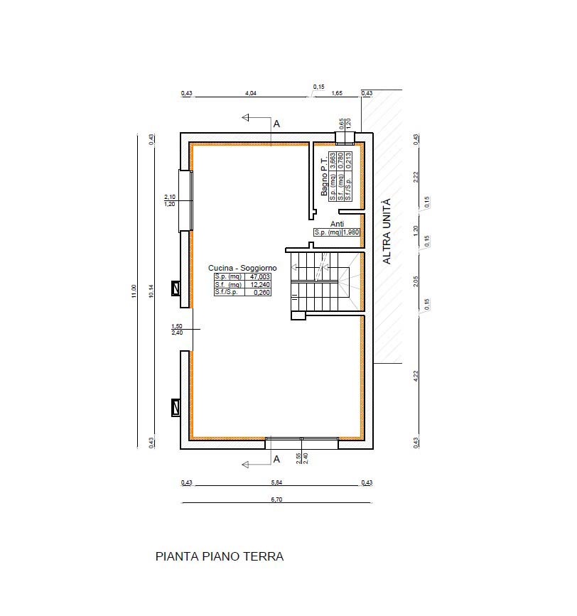
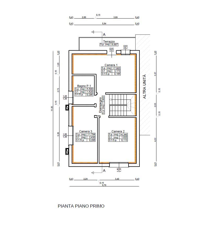
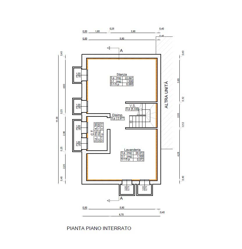
La proprietà si sviluppa su tre piani, così composti: al piano terra, un’ampia zona living, dove soggiorno e cucina sono comunicanti ma occupano spazi ben definiti (entrambi con affaccio sul giardino di proprietà) e un bagno/lavanderia; al piano primo, il disimpegno conduce a due camere matrimoniali (la padronale di oltre mq 16 con terrazza privata), alla terza camera da letto e al bagno; al piano interrato completano questa soluzione immobiliare una taverna, la centrale termica/lavanderia e un comodo garage. Completano la residenza il giardino privato e due posti auto all'interno della proprietà.
Dotazioni di alta qualità: impianto fotovoltaico da 5 kW, riscaldamento a pavimento, caldaia a pompa di calore, predisposizione per impianto di climatizzazione e di allarme, serramenti in PVC con triplo vetro, e predisposizione per cancello automatico. La classe energetica prevista è "A", a garanzia di un comfort elevato e sostenibile.
La consegna è prevista per maggio 2026.
Due unità con caratteristiche simili disponibili.
Ulteriori informazioni, capitolato delle opere e planimetrie di progetto disponibili presso i nostri uffici.
VISITE ALL'IMMOBILE: Le visite sugli immobili con l’agente incaricato saranno organizzate in seguito ad un incontro conoscitivo in agenzia, come da accordi con i proprietari.
SITO ZONE IMMOBILIARE: Visita il nostro sito zoneimmobiliare.it per rimanere sempre aggiornato sulle nuove offerte!
Informazioni immobile
- Immobile in: Vendita
- Provincia: Treviso
- Data di consegna: Da definire
- Nuova costruzione: No
- Categoria: Abbinate / Schiere
- Comune: Asolo
- Stato attuale: In costruzione
- Tipologia: Schiera
- Località: Casella d'Asolo
- Stato consegna: Abitabile
Caratteristiche
- Numero locali: nd
- Piano: su più livelli
- Camere: nd
- Posto auto: No
- Classe energetica: A4
- Mq scoperto: 150
- Arredamento: Non arredato
- Bagni: nd
- Cantina: No
- IPE:
- Mq commerciali: 200
- Cucina: nd
- Garage: nd
- Riscaldamento: Autonomo
Servizi utili nel comune
- Asilo / Scuola dell'infanzia
- Scuola elementare / Primaria
- Scuola media / Secondaria
- Scuola superiore / Liceo
- Università
- Stazione ferroviaria
- Autostrada
- Autobus / Autocorriere
- Aeroporto
- Ospedale
- Centro commerciale
- Parchi pubblici
- Impianti sportivi








